Moksha Construction is proud to have designed and built a luxurious hotel that sets new standards in hospitality.
This upscale hotel project embodies opulence and sophistication, offering guests an unparalleled experience.
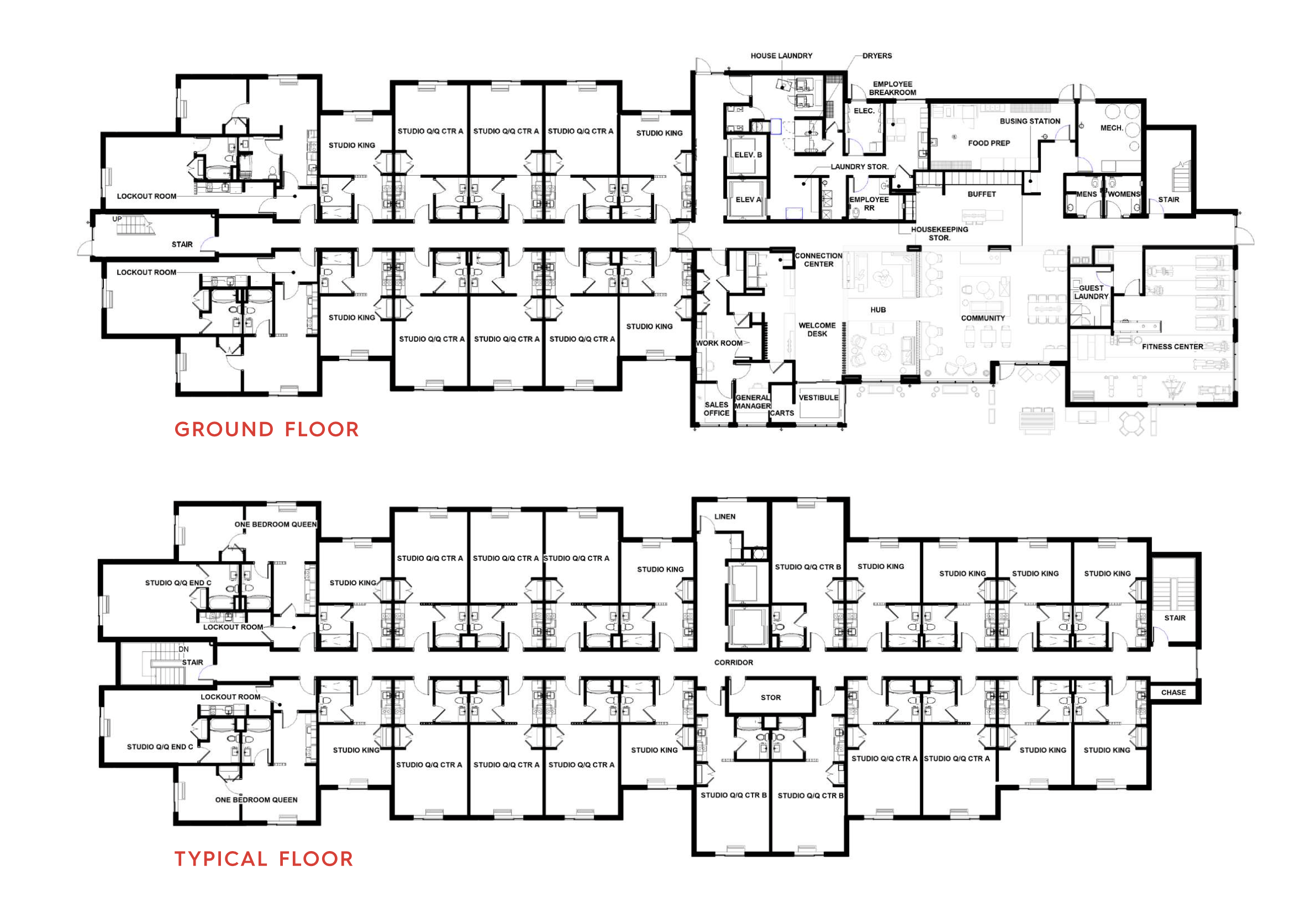
From elegant accommodations consisting of 90 room suites, and world-class amenities and personalized services, every detail has been carefully considered to ensure that visitors enjoy the ultimate in luxury and comfort. The hotel stands as a symbol of our dedication to delivering exceptional projects that reflect the highest standards of quality and hospitality, while also enhancing the local tourism industry. It is a testament to our unwavering commitment to excellence in all our endeavors.






